10주차. 41일째. 작은집 설계(구조목 용어, 단위 등), 동아리(집단상담)
목공 공부/청년목수학교 4기[2023.8.7.~12.2.] 2023. 10. 10. 23:00한글날 휴일을 지내고 화요일이다! 요번주에도 집에 다녀왔더니 조금 피곤하긴 하다.
평소와 같은 시간에 집을 나서는데 이게 웬일. 내비게이션에 10분 이상 더 오래 걸리는 걸로 나왔다. 많은 사람들이 긴 휴일에 며칠 일하다 다시 휴일을 지내면서 패턴이 흐트러졌나보다. 평소에도 출석 시간보다 여유있게 나서기 때문에 늦지는 않았다. 평소보다 10분 정도 늦게 학원에 잘 도착!
오늘은 실습이 없는 날이다.
오전에는 굉장히 오랜만에 강의실에서 강의를 들었다.
작은집 설계에 대한 기초 이론 시간이라고 생각하면 되겠다.
먼저, 작은집 만들기 과정에 대해 설명해 주셨다.
이전의 벽틀 만들기와 세트장 만들기는 만들어 보고 해체하는 것이고 만드는 과정을 관찰 평가 또는 지필 평가로 진행 되었다. 이와 다르게 작은집 만들기는 PBL 학습 과정을 기본으로 운영한다고 한다.
PBL은 Project Based Learning의 줄임말로 문제해결학습과정이다. 자기 주도적으로 문제를 해결하는 과정 자체(그 과정에서 볼 수 있는 팀워크와 의사소통 능력, 성향 등)가 학습 과정이자 평가과정이 된다. 실제로 어떻게 운영되는지 궁금했는데 내가 학습 과정에 참여해 볼 수 있는게 좋은 기회인것 같다.
작은집 기부 프로젝트의 과정
1. 기부처 확정하기: 작은집 기부처와 연락하고 인터뷰 일정 잡기(현장 실사, 수혜처 의사 확인)
2. 작은집 설계하기: 인터뷰를 바탕으로 설계, 작은집 주제 정하기, 적산하기(자재 산출 및 발주) 등
3. 작은집 제작하기: 역할 분담, 바닥, 벽체, 지붕, 창호, 문, 가구 등등
4. 작은집 기부하기: 완성된 작은집 기부처에 이동(학원에서 도움주심)
5. 작은집 프로젝트 과정과 결과 발표: 발표 자료 제작, 발표하기
이 과정을 차례대로 실행해 나간다. 지금 우리 조는 기부처와 연락하여 기부받는 장소를 확정했고, 이제 인터뷰 일정을 잡아서 인터뷰를 실시해야 한다.
집을 짓기 위해서는 자재가 필요하다. 이 자재를 미리 주문하기 위해 오늘 경량 목구조의 전체적인 틀을 빠르게 훑고 필요한 자재에 대한 강의를 해 주셨다. 세트장이 끝나고 작은집 제작 시작할 때 목구조에 대한 강의를 더 자세하게 해 준다고 한다. 강의를 듣고 나서 이번주 금요일 오전까지 1차 주문을 위해 전체적인 틀 만들기를 위한 재료 적산을 완료해서 제출해야 하는 것이 과제가 되었다.
자재 적산을 위해 기본으로 알아야 할 사실들
1. 목구조는 피트/인치 단위를 사용한다. 자재들이 피트/인치 단위로 구성되어있기 때문.
- 인치(inch): 숫자 뒤에 '', 1인치는 16칸으로 나누어짐. 아래 표 참고
- 피트(feet): 숫자 뒤에 ', 또는 F
| 인치/피트 | cm | mm | 인치 | mm | |
| 1'' | 2.54 | 25.4 | 1/2(하프) | 12.7 | |
| 1' | 12'' | 30.48 | 304.8 | 1/4(쿼터) | 6.35 |
| 1/8 | 3.175 | ||||
| * 1m = 3.28' | 1/16 | 1.5875 | |||
| * 1척=30.308cm | * 마이너스/플러스: 통 1인치보다 조금(1/16) 정도 작거나 클 때 간단히 부르기 위해서 사용. 실제 사용할 때 마이나, 쁘라로 부름 (예: 15 쁘라=15 1/16 안되는 정도/ 15 마이나=14 15/16 보다 큰정도) |
||||
구조목(규격재)의 치수
- 내장용 투바이는 가로 세로 비율이 1대2인 각재를 말한다. 그러나 실제로 투바이 각재의 크기는 정확한 1대2가 아니다 27*67 등의 크기가 되는데 그 이유는 목재를 재단할 때 톱날의 두께만큼 날아가는 것, 대패질 등으로 다듬을 때 날아가는 부분을 포함하여 1:2이기 때문이라고 한다. 이와 마찬가지로 외장용 규격재는 인치 치수를 그대로 읽는 것으로 공칭하지만 실제 치수는 그것보다 작아진다. 투바이에잇 정도까지는 실치수를 외워두면 좋다.
| 공칭치수(투바이N) | 인치 실치수 | mm 실치수 |
| 2''×4''(투바이포) | 1 하프×3 하프 | 38 × 89 |
| 2''×6''(투바이식스) | 1 하프×5 하프 | 38 × 140 |
| 2''×8''(투바이에잇) | 1 하프×7 쿼터 | 38 × 184 |
| 2''×10''(투바이텐) | 1 하프×9 쿼터 | 38 × 235 |
| 2''×12''(투바이트웰브) | 1 하프×11 쿼터 | 38 × 286 |
2. 기본 용어: 더 자세한 구조는 추후 별도 강의에서
| 구조 | 재료 및 부품명 |
| 기초(Footing) | 콘크리트(Concrete) |
| 바닥(Floor) | 2''×6, 2''×8, 2''×10'' 장선(I-Joist) |
| 벽(wall) | 2''×4, 2''×6 벽체기둥(Stud) |
| 지붕(Roof) | 2''×8, 2''×10'', 2''×12'' 서까래(Rafter, Truss) |
| 덮개(Sheating) | 외벽: 4'8'(1220*2440) Plywood or OSB |
| 내벽: 4'8'(1220*2440) 석고보드(Gypsum Board) |
3. 자재
| T&G | 텅앤그루브, Tongue and Groove, 혀와 틈새라는 뜻, 바닥에 사용하는 합판 종류 |
| 후레싱 | 집의 골조로 물이 침투하는 것을 방지하는 역할로 수분 관리와 마감재의 보호를 위해 꼭 필요한 물끊기(비막이)자재 |
| 벤트 | 결로 방지를 위해 지붕보 위에 구멍을 뚫어 공기가 통하는 길을 만든다. 뚫은 구멍에 물이 새지 않도록 덮어주는 자재(환기구) |
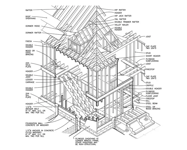
4. 경량 목구조: 와, 오늘 새로운 단어들 많이 알았다. 오늘 안 건 새발의 피다. 아래 이미지 안에 나온 것 중에서 10분의 1도 모르는듯.... 열심히 공부하자

점심 시간 이후 1교시 더~
위 내용들을 간단히 훑고 제작할 작은집 규격을 알려주신 후 적산하기 과제를 주셨다. 열심히 해보자.
남은 오후시간은 동아리 시간이다.
오늘은 주말 동안의 과제, 나에 대해 알아가기 인터뷰 결과를 공유하는 시간이었다. 타인이 나를 어떻게 인지하는지, 내가 인지하고 있는 나, 내가 인지하는 나를 이야기해보는 시간이었다. 인터뷰 사례를 읽고 공유해본 후, 인터뷰를 한 후의 내 마음, 인터뷰 내용 중에서 내가 공감하는 키워드 3가지 꼽아보기, 내가 죽는다면 내 묘비에 타인이 어떻게 써 줄지, 나는 어떻게 쓰고 싶은지, 마지막으로 이야기를 들어본 집단상담 동아리원들의 피드백 듣기까지가 한 사이클이었다.
열심히 듣고 열심히 피드백했다. 내 차례가 되어 나름 말을 정리해가며 해 보려 했지만 깔끔히 하지 못하고 어영부영 했던 듯 하다.
나 혼자 피드백을 보며 다시 정리해 보자.
인터뷰 후 내 마음: 나에 대해 시간을 들여 고민해서 설문에 응답해 준 전 직장 동료들과 친구, 가족들에게 감사하다. 나는 이런 사람이구나, 잘 살고있구나 하는 생각.
내가 공감하는 나에 대한 키워드 3가지: 맑음, 이해심, 겸손함
내가 죽었을 때 묘비에 적힐 말: 성실하고 무엇이든 맡길만한 사람
적히고 싶은 말: 함께 해서 즐거운 사람(나는 스스로 별로 재미있거나 엄청 외향적인 사람은 아니라고 생각하지만 이렇게 되고 싶다는 의미로 말했었다.)
동아리원 분들의 피드백: 드러내지 않고 조용히 할 일 하고 서포트 잘 해주는 사람, 묵묵히 하고 가능한 애써주는 사람, 여러 일에 잘 참여하고 활발한 사람, 사람과 잘 어울리는 사람, 편안한 사람, 웃기는 사람(재미있는 사람이 아니라고 생각한다는 말에 이렇게 말해주었다)
따뜻한 말들이 무척 마음에 와 닿았다. 나에 대한 단어들로 다들 멋진 말을 써 주셨다. 잔잔한 호수, 재야의 고수, 별, 맑음, 유리공 등등 모두 무척 좋았다. 이 단어들에 정말 어울리는 사람으로 발전할 수 있도록 나를 잘 가꾸어나가야겠다.
오늘 자신에 대해 알아보는 시간을 가져 본 후, 다음 동아리 시간부터는 목적선언문을 만들어 본다고 한다. 인생에서 내가 어떻게 살아가고자 하는지 나는 누구이며 나의 삶의 목적은 무엇인지, 그 목적을 이루기 위해 해나갈 수 있는 일들과 하기 위한 태도들은 어떤 것이 있는지 써 보는 것이다. 목적선언문은 처음부터 완성되어 있지는 않으며 꾸준히 노력해 나가는 것. 조금씩 더 구체화 시켜 나가는 것. 대표님께서 본인의 목적선언문을 예시로 들어 설명해 주셨다.
이번주까지 작성해서 제출하는 것이 과제다. 살면서 삶의 목표를 고민해 본 기억이 안난다. 대학때 과제로 해 봤으려나? 머리 터지게 고민해보자. 내 삶의 목표, 나는 어떻게, 무엇을 위해 살아가야 하는걸까.
내일 오전은 특강이 있는 날이다. 종합건축회사의 대표님께서 강의를 해 주신다고 한다. 재미있겠다~
오후에는 세트장 만들기 이어가기! 또 열심히 달려서 이번주 내에 완성할 수 있도록 노력하기~!
| 10주차. 43일째. 세트장 만들기, 작은집 1차 적산 (0) | 2023.10.12 |
|---|---|
| 10주차. 42일째. 특강, 세트장(몰딩, 창문) (3) | 2023.10.12 |
| 9주차. 40일째. 세트장 만들기, 작은집 기부처 컨택 (3) | 2023.10.07 |
| 9주자. 39일째. 세트장 만들기, 상담 (0) | 2023.10.05 |
| 9주자. 38일째. 세트장 만들기, 가구(나무 필통, 정리함) (2) | 2023.10.04 |